facebook Building "A" at Versum – Prime Office & Shop Rentals in Riga
In total
Office
Showroom
Warehouse
Status

Building A

Floor 1
Floor 2
Floor 3
Floors
1
2
3
Nr
Showroom
Warehouse
Office
In total
Status
1
61,83
345,84
-
518,64
2
63,58
225,92
-
403,58
3
122,26
273,68
-
600,64
4
86,64
218,97
-
434,71
booked
5
73,66
171,81
-
376,07
booked
6
80,22
320,06
-
547,07
booked
7
165,20
-
-
165,20
booked
8
98,66
-
-
98,66
booked
9
236,52
-
-
236,52
booked
11
239,23
-
-
239,23
booked
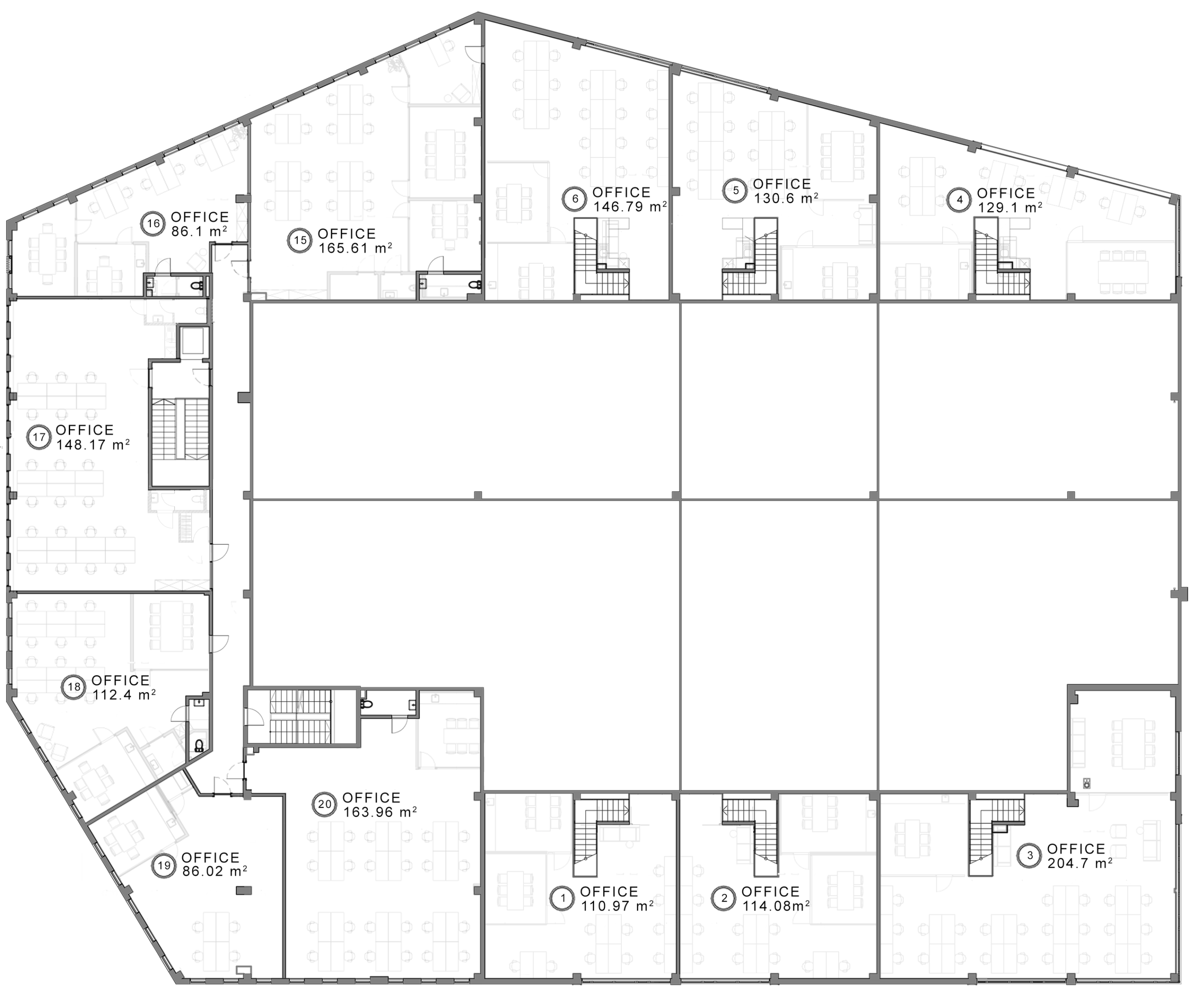
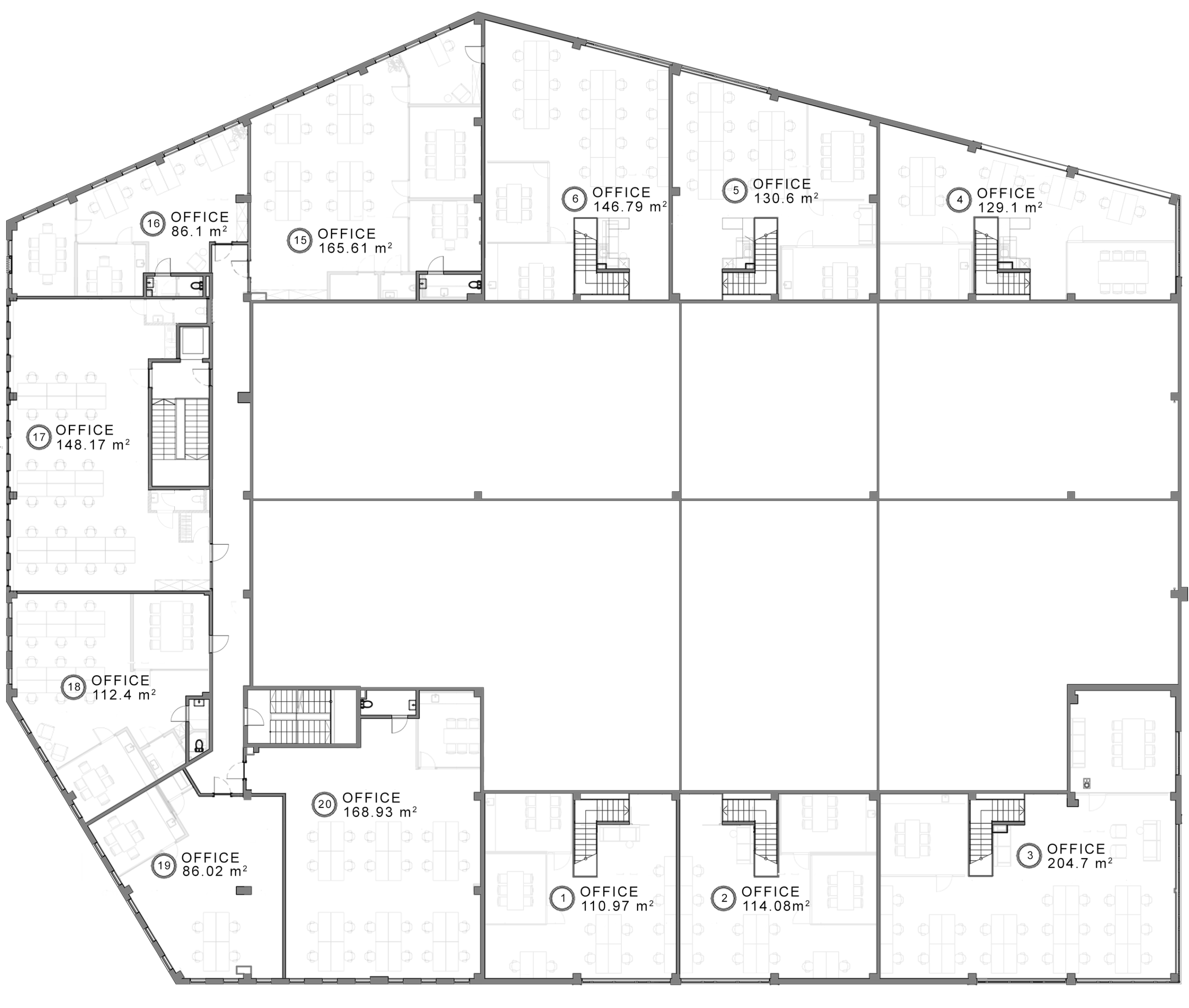
Nr
Showroom
Warehouse
Office
In total
Status
1
-
-
110,97
518,64
2
-
-
114,08
403,58
3
-
-
204,70
600,64
4
-
-
129,10
434,71
booked
5
-
-
130,60
376,07
booked
6
-
-
146,79
547,07
booked
15
-
-
165,61
165,61
16
-
-
86,10
86,10
booked
17
-
-
148,17
148,17
booked
18
-
-
112,40
112,40
booked
19
-
-
86,02
86,02
booked
20
-
-
163,96
163,96
Nr
Showroom
Warehouse
Office
In total
Status
21
-
-
160,06
160,06
22
-
-
85,95
85,95
booked
23
-
-
147,64
147,64
booked
24
-
-
111,59
111,59
booked
25
-
-
251,58
251,58
booked
26
-
-
134,27
134,27
booked
27
-
-
137,02
137,02
A_1st_eng_
A_2nd_eng_fix
A_3rd_eng
The premises can be divided into smaller or bigger rental areas according to the tenant's needs.

Interested?

Contact our sales personnel to find the solution that best fits your business, or fill out the form below.
Photo-1
Jana Sumaruka
Rent inquiries (LV & ENG)
Photo_Jana_M
Jana Mitunevitš
Rent inquiries (EST & ENG)
In total
Office
Showroom
Warehouse
Status

Ready to start?

    By clicking this button, you agree to the use and processing of your personal data in accordance with the Privacy Policy

    { contact us }