facebook Аренда складов, офисов и магазинов в здании А, Versum, Рига
Всего
Офис
Шоурум
Склад
Статус

Здание А

1 этаж
2 этаж
3 этаж
Этажи
1
2
3
Шоурум
Склад
Офис
Всего
Статус
1
61,83
345,84
-
518,64
забронировано
2
63,58
225,92
-
403,58
забронировано
3
122,26
273,68
-
600,64
забронировано
4
86,64
218,97
-
434,71
забронировано
5
73,66
171,81
-
376,07
забронировано
6
80,22
320,06
-
547,07
свободно
7
165,20
-
-
165,20
забронировано
8
98,66
-
-
98,66
забронировано
9
236,52
-
-
236,52
забронировано
11
239,23
-
-
239,23
забронировано
Шоурум
Склад
Офис
Всего
Статус
1
-
-
110,97
518,64
забронировано
2
-
-
114,08
403,58
забронировано
3
-
-
204,70
600,64
забронировано
4
-
-
129,10
434,71
забронировано
5
-
-
130,60
376,07
забронировано
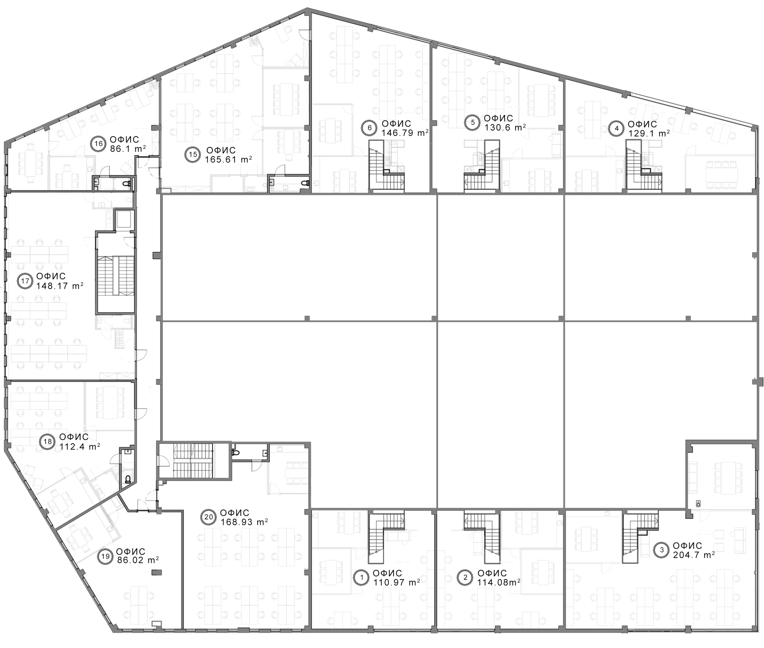
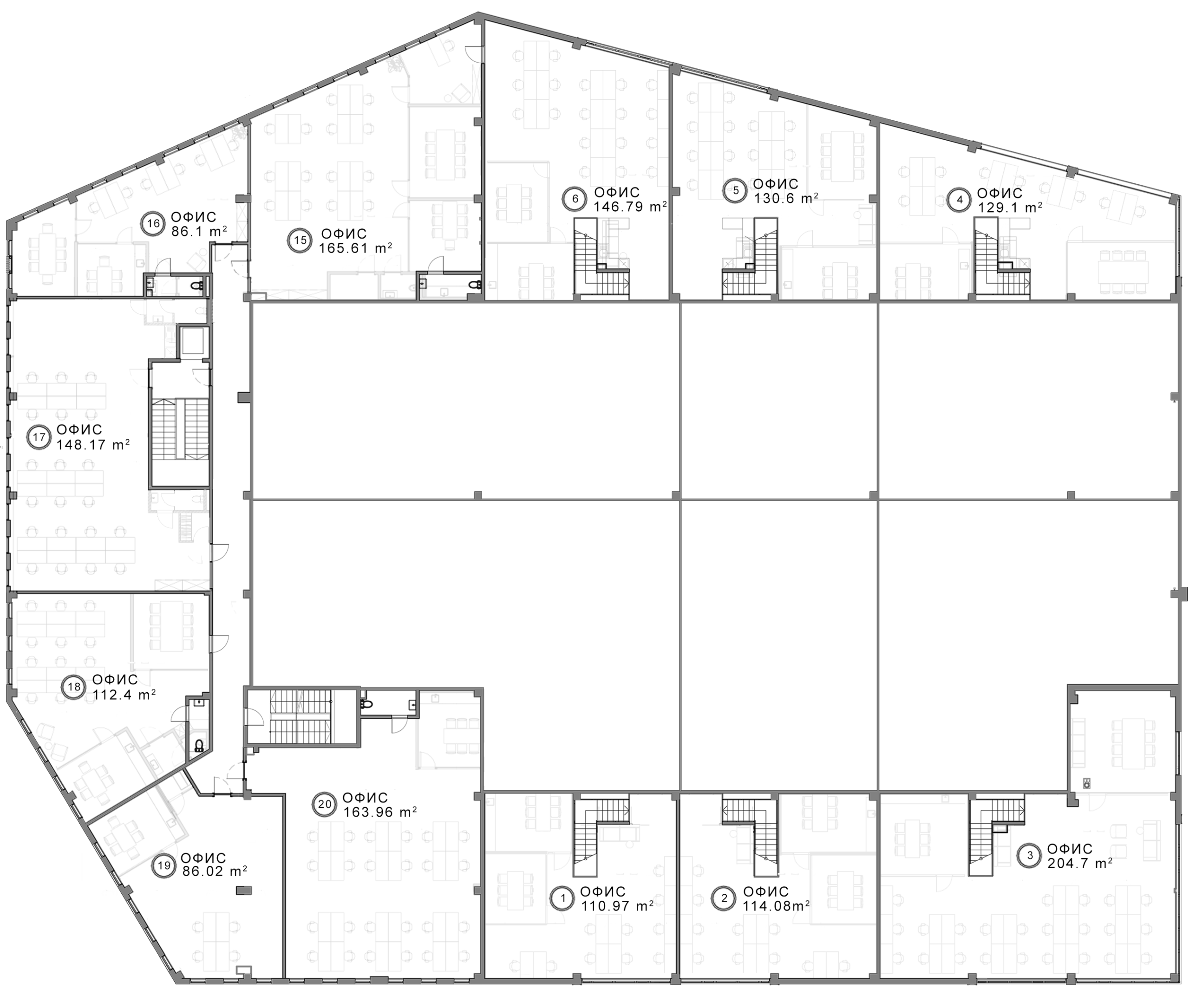
6
-
-
146,79
547,07
свободно
15
-
-
165,61
165,61
свободно
16
-
-
86,10
86,10
забронировано
17
-
-
148,17
148,17
забронировано
18
-
-
112,40
112,40
забронировано
19
-
-
86,02
86,02
забронировано
20
-
-
163,96
163,96
забронировано
Шоурум
Склад
Офис
Всего
Статус
21
-
-
160,06
160,06
свободно
22
-
-
85,95
85,95
забронировано
23
-
-
147,64
147,64
забронировано
24
-
-
111,59
111,59
забронировано
25
-
-
251,58
251,58
забронировано
26
-
-
134,27
134,27
забронировано
27
-
-
137,02
137,02
свободно
A_1st_ru
A_2nd_ru
A_3rd_ru
* Помещения могут быть разделены на меньшие или большие арендуемые площади в зависимости от потребностей арендатора.

Заинтересованы?

Свяжитесь с нашим представителем, чтобы найти решение, которое лучше всего подходит для вашего бизнеса, или заполните форму ниже.
Photo-1
Jana Sumaruka
Запросы по аренде
(LV, RU & ENG)
Photo_Jana_M
Jana Mitunevitš
Запросы по аренде
(EST, RU & ENG)
Всего
Офис
Шоурум
Склад
Статус

Готовы начать?

    Нажимая эту кнопку, вы соглашаетесь на использование и обработку ваших персональных данных в соответствии с Политикой конфиденциальности.

    { свяжитесь с нами }